L’Ajuntament de Girona treu a licitació la reforma de l’entorn de la parròquia de Sant Pau

L’Ajuntament de Girona treu a licitació la reforma de l’entorn de la parròquia de Sant Pau
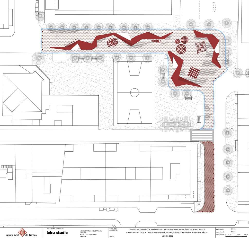
L’objectiu és pacificar un tram del carrer de Narcís Blanch i Illa i ampliar la zona esportiva i d’esbarjo existent per convertir l’indret en una plaça per al barri
L’Ajuntament de Girona ha tret a licitació la reforma de l’entorn de la parròquia de Sant Pau per tal de pacificar un tram del carrer de Narcís Blanch i Illa i ampliar la zona esportiva i d’esbarjo existent. A través de diferents actuacions tàctiques, es pretén convertir aquest indret en un espai reservat per a les persones vianants i on, per tant, es prohibeixi la circulació de vehicles.
"Fem un pas més cap a la pacificació del carrer de Narcís Blanch i Illa, un espai central del barri de Pla de Palau-Sant Pau que volem que estigui més centrat en les persones i que esdevingui un punt de trobada i de comunitat per a la gent del barri", ha destacat el tinent d’alcaldia i regidor de Transició Ecològica i Àrea Urbana de l’Ajuntament de Girona, Sergi Font Domènech.
L’objectiu de la reforma de l’entorn de la parròquia de Sant Pau és crear una plaça per al barri en un punt on hi ha una pista poliesportiva i una zona d’estada i joc amb una taula de ping-pong. La transformació d’aquest punt del barri de Pla de Palau – Sant Pau permetrà que es pugui comptar amb una zona d’esbarjo més segura, saludable i jugable, ja que s’eliminarà el trànsit rodat i, en conseqüència, el fum i soroll dels vehicles.
L’actuació es desenvoluparà al llarg del carrer de Narcís Blanch i Illa, des del seu encreuament amb el carrer del Riu Llierca estenent-se fins al carrer del Riu Ser. Tot aquest tram, que té una superfície de 1.280 m2 , passarà a ser un espai exclusiu per a persones vianants. L’indret es pacificarà amb la col·locació de mobiliari urbà, així com amb arbres i vegetació per tal de crear una plaça amable i de proximitat per al barri que fomenti el joc, la socialització i la trobada intergeneracional.
Tot i que encara s’han d’acabar de definir alguns detalls de la proposta, està previst reasfaltar el carrer amb una capa acolorida per a la diferenciació del nou espai. A més, es pintaran diferents patrons i jocs lúdics sobre el terra. L’espai comptarà amb elements de mobiliari urbà com cadires i bancs de fusta, que tindran una forma triangular i seran de diferents alçades. També hi haurà estructures circulars per embellir el paisatge i per aparcar-hi bicicletes. A més, es plantaran arbres en tot el tram. Per últim, es reforçarà l’enllumenat amb la incorporació de lluminàries que supleixin i millorin la il·luminació del carrer.
L’import de la licitació és de 181.933 euros (IVA inclòs) i el termini d’execució és de quatre mesos a comptar des del dia següent de la signatura de l'acta de comprovació de replanteig.
La proposta va ser treballada conjuntament amb la mainada del Consell de la Infància i ha estat presentada a l'Associació de Veïns de Pla de Palau-Sant Pau, qui hi va poder fer algunes aportacions.


